Каталог товаров

Вентилятор канальный прямоугольный взрывозащищенный VCN-Ex1

Описание товара
Характеристики моделей
Купить

Описание

  • Вентиляторы канальные прямоугольные VCN-Ex1 предназначены для применения в потенциально взрывоопасной газовой среде категорий IIА, IIВ, IIС (кроме взрывоопасных смесей с воздухом: коксового газа категории IIВ группы Т1; окиси пропилена, окиси этилена, формальдегида, этилтрихлорэтилена, этилена категории IIВ группы Т2; винилтрихлорсилена, этилхлорсилена категории IIB группы Т3)
  • Монтаж в любом положении

Конструктив

  • Корпус из оцинкованной стали
  • Свободное колесо «РЦ» с загнутыми назад лопатками

Двигатель

  • Трехфазный взрывозащищенный электродвигатель
  • Степень защиты электродвигателя IP 54

Условия эксплуатации

  • Климатическое исполнение по ГОСТ 15150: У3 (для эксплуатации в помещениях). 
  • Допускается эксплуатация в У2 (под навесом) при условии защиты вентилятора от атмосферных осадков и прямого попадания солнечных лучей
  • Взрывозащищенное исполнение - Ex1
  • Температура окружающей среды от -45°С до +40°С
  • Температура перемещаемой среды от -45°С до +80°С
  • Перемещаемая среда не должна содержать:
- взрывчатых и/или липких веществ, волокнистых материалов, пыли и других твердых примесей в концентрации более 100 мг/м3
- взрывоопасных веществ под избыточным давлением или нагревающихся выше температуры их самовоспламенения
- пары и газы, вызывающие ускоренную коррозию оцинкованной стали и латуни, агрессивные к покрытиям и изоляции выше агрессивности воздуха
  • Вентиляторы подгруппы IIC не предназначены для применения во взрывоопасных газовых средах, содержащих ацетилен

Дополнительная комплектация*

VCN-Ex1_допы.jpg

1 - Вставка гибкая прямоугольная ВГП
2 - Шпилька
3 - Траверса монтажная
4 - Крепежные изделия 

* Дополнительные комплектующие в комплект поставки не входят.

Файлы
Вентиляторы канальные прямоугольные взрывозащищенные VCN-Ex1.pdf

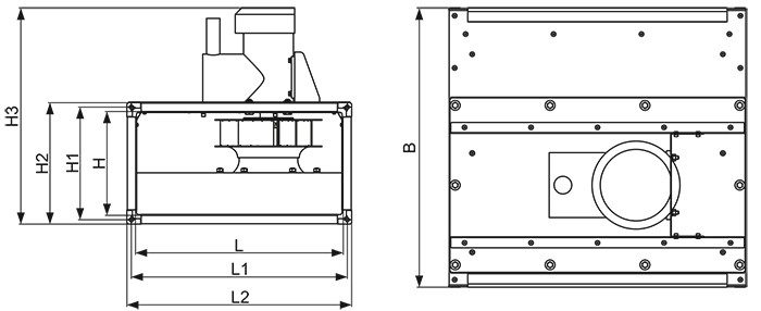
Габаритные и присоединительные размеры, мм

VCN-Ex1_чертеж.jpg

Наименование 

L

H

L1

H1

L2

H2

B

H3

VCN-40-20/18-Ex1/IIB-PЦ-0,37/3000/220-380

400

200

421

221

440

240

457

468

VCN-40-20/20-Ex1/IIB-PЦ-0,37/3000/220-380

400

200

421

221

440

240

457

468

VCN-50-25/22-Ex1/IIB-PЦ-0,37/3000/220-380

500

250

521

271

540

290

507

518

VCN-50-25/25-Ex1/IIB-PЦ-0,55/3000/220-380

500

250

521

271

540

290

507

518

VCN-50-25/25-Ex1/IIB-PЦ-0,37/1500/220-380

500

250

521

271

540

290

507

518

VCN-50-30/28-Ex1/IIB-PЦ-1,1/3000/220-380

500

300

521

321

540

340

607

573

VCN-50-30/28-Ex1/IIB-PЦ-0,25/1500/220-380

500

300

521

321

540

340

607

568

VCN-50-30/31-Ex1/IIB-PЦ-2,2/3000/220-380

500

300

521

321

540

340

607

617

VCN-50-30/31-Ex1/IIB-PЦ-0,25/1500/220-380

500

300

521

321

540

340

607

568

VCN-60-35/35-Ex1/IIB-PЦ-3,0/3000/220-380

600

350

621

371

640

390

657

673

VCN-60-35/35-Ex1/IIB-PЦ-0,37/1500/220-380

600

350

621

371

640

390

657

618

VCN-70-40/40-Ex1/IIB-PЦ-0,75/1500/220-380

700

400

721

421

740

440

707

673

VCN-80-50/45-Ex1/IIB-PЦ-1,5/1500/220-380

800

500

821

521

840

540

807

817

VCN-80-50/50-Ex1/IIB-PЦ-2,2/1500/220-380

800

500

821

521

840

540

857

823

VCN-100-50/56-Ex1/IIB-PЦ-4,0/1500/220-380

1000

500

1021

521

1040

540

957

888

Технические характеристики

Наименование

Мощность кВт

Ток, А

Частота вращения,
об/мин

Масса, кг

Общий дБа

На входе

К окружению

VCN-40-20/18-Ex1/IIB-PЦ-0,37/3000/220-380

0,37

1,01

3000

26

65

75

VCN-40-20/20-Ex1/IIB-PЦ-0,37/3000/220-380

0,37

1,01

3000

26

70

72

VCN-50-25/22-Ex1/IIB-PЦ-0,37/3000/220-380

0,37

1,01

3000

32

74

80

VCN-50-25/25-Ex1/IIB-PЦ-0,55/3000/220-380

0,55

1,38

3000

34

75

81

VCN-50-25/25-Ex1/IIB-PЦ-0,37/1500/220-380

0,37

1,12

1500

33

56

60

VCN-50-30/28-Ex1/IIB-PЦ-1,1/3000/220-380

1,1

2,61

3000

44

61

69

VCN-50-30/28-Ex1/IIB-PЦ-0,25/1500/220-380

0,25

0,79

1500

40

59

63

VCN-50-30/31-Ex1/IIB-PЦ-2,2/3000/220-380

2,2

4,85

3000

57

67

74

VCN-50-30/31-Ex1/IIB-PЦ-0,25/1500/220-380

0,25

0,79

1500

46

66

70

VCN-60-35/35-Ex1/IIB-PЦ-3,0/3000/220-380

3,0

6,34

3000

88

80

87

VCN-60-35/35-Ex1/IIB-PЦ-0,37/1500/220-380

0,37

1,12

1500

59

65

70

VCN-70-40/40-Ex1/IIB-PЦ-0,75/1500/220-380

0,75

2,05

1500

71

71

75

VCN-80-50/45-Ex1/IIB-PЦ-1,5/1500/220-380

1,5

3,72

1500

92

76

80

VCN-80-50/50-Ex1/IIB-PЦ-2,2/1500/220-380

2,2

5,1

1500

103

78

82

VCN-100-50/56-Ex1/IIB-PЦ-4,0/1500/220-380

4

8,8

1500

133

81

83

Электрическая схема подключения вентиляторов 

VCN-Ex1_элсхема.jpg

VCN-Ex1_маркировка.jpg



Не представленные в наличии модели доступны к поставке под заказ

Оповестить о поступлении

Спасибо за обращение!
Наш менеджер свяжется с вами.

Всю необходимую информацию также можно получить по телефону «горячей линии»

+ 7 800 200 93 96

или по телефону

+7 800 505 08 67 получить консультацию